Das Haus

Grundriss

Ausstattung

Fotos

Grundriß
Erdgeschoß
Erdgeschoss
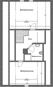
Obergeschoß
Obergeschoss
Das Haus|Anreise|Das Wetter|Über Borkum|Impressum